50+ Mẫu nhà ống đẹp, hiện đại, xu hướng thiết kế mới nhất 2023
Xã hội càng phát triển, nhu cầu về nhà ở tại các đô thị ngày càng cao. Tuy nhiên, do quỹ đất hạn hẹp việc tìm kiếm những mẫu thiết kế nhà ống đẹp nhưng vẫn đảm bảo đầy đủ công năng là điều mà các chủ đầu tư vô cùng quan tâm. Cùng DURAflex tham khảo những mẫu nhà ống đẹp được gợi ý trong bài viết để có kế hoạch phù hợp nhất cho ngôi nhà tương lai của mình nhé!
Ưu, nhược điểm của nhà ống
Nhà ống (hay nhà phố) là kiểu nhà được xây dựng trên ô đất hình chữ nhật, có diện tích chiều ngang nhỏ, hẹp hơn nhiều so với chiều dài. Nhà ống rất phổ biến ở những thành phố đông dân cư hoặc những nơi có mật độ dân số dày.

Mẫu nhà ống 3 tầng có tum đẹp, hiện đại (Nguồn: Internet)
Dưới đây là một số ưu, nhược điểm khi xây dựng kiểu nhà ống:
Ưu điểm:
- Nhà ống có đa dạng phong cách thiết kế, từ cổ điển cho đến hiện đại. Tùy vào ngân sách và nhu cầu sử dụng, bạn có thể xây nhà ống 1 tầng, 2 tầng hoặc nhà ống 3 tầng.
- Mẫu nhà ống đẹp sẽ giúp bạn tối ưu diện tích và thời gian thi công.
- Có thể dễ dàng tu sửa nhà ống hoặc nâng cấp từ 1 tầng lên nhiều tầng
Nhược điểm:
Các mẫu nhà ống được xây dựng theo kiểu hình khối chữ nhật nên thường gặp khó khăn trong việc tận dụng gió và ánh sáng tự nhiên, đặc biệt là tại các khu vực đô thị.
Vì nhà ống thường có giới hạn về chiều rộng nên việc sắp xếp các phòng chức năng không thuận tiện. Đối với các gia đình có nhiều thành viên, giải pháp phổ biến thường là xây dựng thêm tầng. Tuy nhiên, điều này có thể gây bất tiện trong việc di chuyển vì lối đi khá hẹp.
>> Báo giá cải tạo nhà cũ thành nhà mới chi tiết, mới nhất 2023
>> 10 phương án cải tạo nhà cấp 4 đẹp, tối ưu chi phí

Mẫu nhà ống 3 tầng thiết kế độc đáo, ấn tượng (Nguồn: Internet)
Tấm xi măng DURAflex 2X - Giải pháp cho nhà ống đẹp và hiện đại
Đối với các công trình nhà ống, việc lựa chọn vật liệu thi công vô cùng quan trọng. Ngoài tính thẩm mỹ, vật liệu phải đảm bảo độ bền, dễ di chuyển và bảo quản do không gian thi công nhà ống không được rộng rãi và thuận tiện như các kiểu nhà khác. Đó là lý do vì sao rất nhiều người lựa chọn tấm xi măng DURAflex để thay thế cho các loại vật liệu truyền thống ở các hạng mục như: tường nội thất, tường ngoại thất; lót sàn nhà, sàn ngoại thất, sàn gác lửng; trần chìm; trần thả; lót mái,…
Tấm xi măng DURAflex 2X có thành phần chính gồm xi măng Portland, cát mịn và sợi Cellulose, sản xuất bằng công nghệ chưng áp độc quyền của Saint-Gobain. Nhờ đó, tạo ra cấu trúc tinh thể vững chắc, có khả năng chịu lực, chịu tải trọng cao cũng như khả năng chống cháy và cách âm vượt trội. Với cấu trúc đa liên kết của sợi Cellulose, các tấm DURAflex 2X có kết cấu vô cùng bền vững và dẻo dai, dễ dàng tùy biến và thi công nhanh chóng. Không dừng lại ở đó, tấm Cemboard DURAflex còn được chứng nhận là vật liệu xanh, không chứa amiăng, vô cùng an toàn với sức khỏe. Tất cả những ưu điểm này giúp tấm xi măng DURAflex 2X trở thành vật liệu không thể thiếu để hoàn thiện các thiết kế nhà ống đẹp mà vẫn tiết kiệm chi phí và nhân công.
Ngoài ra, để công trình trởn nên bền đẹp và tiết kiệm chi phí hơn, các gia chủ nên lựa chọn sản phẩm có độ dày phù hợp với hạng mục thi công của mình. Sau đây là khuyến nghị của DURAflex mà các bạn có thể tham khảo:
- Tấm DURAflex 2X 6mm - 10mm: Thi công vách ngăn, ốp tường nội thất - ngoại thất.
- Tấm DURAflex 2X trên 12mm: Thi công sàn nhẹ, sàn giả, sàn nâng,... thay thế bê tông.

Tấm xi măng DURAflex 2X là giải pháp tối ưu để hoàn thiện các mẫu thiết kế nhà ống đẹp
Hiện nay, tấm xi măng lát sàn DURAflex 2X đã có nhà máy sản xuất chính thức tại Việt Nam và được phân phối rộng rãi trên toàn quốc. DURAflex có 120 trung tâm phân phối và hơn 3000 đại lý chính thức DURAflex trải khắp 54 tỉnh thành. Khách hàng ở mọi miền tổ quốc có thể yên tâm mua đúng tấm xi măng DURAflex 2X chính hãng, chất lượng cao gần nhất với nơi mình sinh sống bằng cách truy cập trang web https://duraflex.com.vn/vi/he-thong-phan-phoi hoặc liên hệ hotline miễn phí 18001218 để được tư vấn.
>> Xem thêm:
- Cách thi công tấm Cemboard làm sàn, vách chi tiết, đúng kỹ thuật
- 50+ Mẫu vách ngăn phòng ngủ kín đáo, sang trọng - Cập nhật mới 2023
Tổng hợp những mẫu nhà ống đẹp, hiện đại, được ưa chuộng nhất hiện nay
Mẫu nhà ống hiện đại, ấn tượng được áp dụng nhiều trong công trình nhà 1 tầng, 2 tầng, 3 tầng, nhà cấp 4, nhà ống gác lửng với mức giá rẻ, phù hợp với điều kiện kinh tế của mỗi gia đình. Cùng DURAflex tìm hiểu chi tiết về cấu trúc nhà ống và tìm kiếm mẫu nhà ống đẹp, sang trọng nhất hiện nay.
>> Xem thêm:
- Nhà thép tiền chế là gì? Tất tần tật các thông tin về nhà tiền chế
- 20+ Mẫu nhà tiền chế dưới 100 triệu đẹp, hiện đại, xu hướng mới nhất hiện nay
- 15+ Mẫu nhà tiền chế 1 mái đẹp, tiện nghi, tiết kiệm chi phí
Mẫu nhà ống 1 tầng đẹp
Thiết kế nhà ống đẹp 1 tầng (hay nhà ống cấp 4) ngày càng trở nên phổ biến ở nước ta. Không chỉ thấy nhiều ở các thành phố lớn mà hiện nay, các gia đình ở nông thôn cũng rất ưa chuộng mẫu nhà ống 1 tầng này. Khác với kiến trúc truyền thống xưa cũ, nhà ống 1 tầng hiện đại mang phong cách mới lạ, ấn tượng trong thiết kế nhưng vẫn đầy đủ tiện nghi và tiết kiệm chi phí.

Mẫu nhà ống 1 tầng đẹp, sang trọng với ốp tường từ tấm xi măng vân gỗ DURAwood (Nguồn: Internet)

Mẫu nhà ống cấp 4 đẹp, giá rẻ cho gia đình nhỏ (Nguồn: Internet)

Mẫu nhà ống hiện đại được thi công sàn nhẹ ngoài sân mang đến không gian đẹp mắt, hiện đại (Nguồn: Internet)

Mẫu nhà gác lửng đẹp với gam màu trắng nhẹ nhàng, tinh tế (Nguồn: Internet)

Mẫu nhà ống 1 tầng nông thôn với thiết kế mái lệch độc đáo (Nguồn: Internet)

Mẫu nhà cấp 4 có gác lửng đẹp, tiện nghi (Nguồn: Internet)

Mẫu nhà cấp 4 mái Nhật đẹp, đơn giản cho công trình (Nguồn: Internet)

Sử dụng tấm xi măng vân gỗ DURAwood để lót sàn ngoại thất cho nhà ống cấp 4
>> 20+ Mẫu nhà tiền chế nông thôn đơn giản, hiện đại, tiết kiệm chi phí
>> 50+ Mẫu xây nhà cấp 4 trọn gói 200 triệu đẹp, tiện nghi
Mẫu nhà ống 2 tầng đẹp
Mẫu nhà ống 2 tầng mái bằng này sử dụng phong cách thiết kế tối giản, đảm bảo đầy đủ công năng nhưng vẫn vô cùng thanh lịch. Mặt tiền tầng 2 bố trí ban công rộng, đảm bảo sự thông thoáng cũng như ánh sáng cần thiết cho ngôi nhà.
>> Xem thêm:
- TOP 20+ mẫu nhà container giá rẻ với thiết kế độc đáo nhất 2023
- Top 25+ mẫu nhà khung thép 2 tầng đẹp, giá rẻ kèm báo giá chi tiết

Mẫu nhà ống đẹp 2 tầng ban công rộng rãi thoáng mát (Nguồn: Internet)

Mẫu nhà ống đẹp 2 tầng có sân rộng để đổ xe (Nguồn: Internet)

Mẫu nhà ống 2 tầng đẹp, xu hướng thiết kế (Nguồn: Internet)

Mẫu nhà ống 2 tầng đẹp nhất hiện nay (Nguồn: Internet)

Mẫu thiết kế nhà ống 2 tầng đẹp với thiết kế nhiều cửa kính để hứng ánh sáng tự nhiên (Nguồn: Internet)

Mẫu nhà ống đẹp 2 tầng có 1 tum làm khu vườn (Nguồn: Internet)

Mẫu nhà ống 2 tầng 1 tum với góc sân thượng trồng cây xanh (Nguồn: Internet)

Thiết kế nhà ống đẹp 2 tầng 1 tum đẹp, thoáng mát (Nguồn: Internet)
Mẫu nhà ống 3 tầng đẹp
Mẫu nhà ống đẹp 3 tầng kết hợp với mái bằng hoặc mái thái mang đến cho gia chủ một phong cách hiện đại và thời thượng.
Thiết kế nhà ống đẹp 3 tầng cho phép bạn thể hiện sự sáng tạo và tạo nên phong cách riêng theo ý muốn của mình. Đồng thời, bạn có thể sắp xếp đồ nội thất một cách hợp lý để đáp ứng đầy đủ công năng, tiện nghi và thoải mái cho tất cả các thành viên trong gia đình.
Tuy nhiên, những mẫu nhà ống mặt tiền thường có bề ngang khá hẹp và san sát với các nhà bên cạnh. Do đó, gia chủ khi xây nhà 3 tầng cần chú ý đến thiết kế để đảm bảo ánh sáng và khả năng thông gió của công trình.
>> Xem thêm: TOP 10+ Mẫu Nhà Tiền Chế Đẹp Nhất Năm 2023

Mẫu thiết kế nhà ống đẹp 3 tầng mặt tiền rộng (Nguồn: Internet)

Mẫu nhà ống với thiết kế nhiều cửa kính để thông quang thoáng khí (Nguồn: Internet)

Thiết kế mẫu nhà ống 3 tầng vô cùng độc đáo, ấn tượng (Nguồn: Internet)

Mẫu nhà ống đẹp 3 tầng được thiết kế hiện đại (Nguồn: Internet)

Thiết kế nhà ống đẹp 3 tầng kết hợp ban công để ngắm cảnh (Nguồn: Internet)

Mẫu nhà ống 3 tầng mái Thái đẹp, ấn tượng (Nguồn: Internet)

Mẫu nhà ống hiện đại 3 tầng thoáng mát, tiện nghi (Nguồn: Internet)

Thiết kế nhà ống đẹp 3 tầng với thiết kế mái bằng đơn giản (Nguồn: Internet)
>> Để nhận được tư vấn và bảng giá chi tiết vật liệu tấm xi măng DURAflex 2X làm sàn - tường -trần - lót mái nhà ống, vui lòng bấm:
Mẫu nhà ống có sân vườn đẹp
Thay vì phân chia không gian thành các khu vực chức năng riêng biệt, mẫu thiết kế này sẽ tận dụng khoảng sân vườn nhỏ để tạo ra một không gian mở, kết nối giữa trong nhà và ngoài trời. Điều này giúp ánh sáng tự nhiên và không khí tươi mát xâm nhập vào tất cả các phòng, mang lại môi trường sống thoải mái và trong lành cho gia đình.
>> Đọc thêm: Mẫu nhà tiền chế cấp 4 đẹp, giá rẻ - Cấu tạo và Báo giá

Mẫu thiết kế nhà ống đẹp có sân vườn kết hợp hệ thống cửa kính thoáng đãng (Nguồn: Internet)

Mẫu thiết kế sân vườn đẹp cho nhà ống (Nguồn: Internet)
Mẫu nhà ống phong cách tân cổ điển đẹp
Mặc dù đã xuất hiện từ rất lâu nhưng phong cách tân cổ điển vẫn rất được ưa chuộng tại Việt Nam. Chính vì vậy, ngoài các mẫu biệt thự quen thuộc, phong cách thiết kế này còn được áp dụng cho nhà ống, mang đến nét độc đáo nhưng vẫn giữ được sự sang trọng vốn có.

Mẫu nhà ống đẹp 2 tầng phong cách tân cổ điển (Nguồn: Internet)

Mẫu thiết kế nhà ống đẹp theo phong cách tân cổ điển (Nguồn: Internet)

Mẫu thiết kế nhà ống 4 tầng đẹp, sang trọng phong cách tân cổ điển (Nguồn: Internet)

Thiết kế nhà ống đẹp tân cổ điển kết hợp hệ thống cửa kính (Nguồn: Internet)

Mẫu nhà ống đẹp tân cổ điển với họa tiết tinh tế (Nguồn: Internet)

Thiết kế nhà ống kết hợp kiến trúc tân cổ điển và hiện đại (Nguồn: Internet)
Mẫu nhà ống có 2 mặt tiền đẹp
Khác với mẫu nhà ống 1 mặt tiền, nhà ống 2 mặt tiền sẽ thoáng đãng hơn, tận dụng được nhiều không gian hơn cho việc thiết kế. Một số mẫu nhà ống 2 mặt tiền đang xu hướng trong năm 2023 như sau:

Mẫu nhà ống 2 mặt tiền đẹp, thiết kế rộng rãi (Nguồn: Internet)

Mẫu thiết kế nhà ống đẹp có 2 mặt tiền (Nguồn: Internet)

Mẫu thiết kế nhà ống hiện đại có 2 mặt tiền (Nguồn: Internet)

Mẫu thiết kế nhà ống có 2 mặt tiền mang đến không gian sống tiện nghi và rộng rãi hơn (Nguồn: Internet)

Mẫu nhà ống đẹp, hiện đại có 2 mặt tiền (Nguồn: Internet)

Mẫu nhà ống đẹp có 2 mặt tiền sang trọng (Nguồn: Internet)
>> Để nhận được tư vấn và bảng giá chi tiết vật liệu tấm xi măng DURAflex 2X làm sàn - tường -trần - lót mái nhà ống, vui lòng bấm:
Mẫu nhà ống mặt tiền 4m đẹp
Hiện nay, mẫu nhà ống đẹp mặt tiền 4m đang trở nên phổ biến tại các khu đô thị và thành phố lớn. Với sự đa dạng về kiểu thiết kế kiến trúc từ cổ điển đến hiện đại, những ngôi nhà này đem lại không gian sống tiện nghi và sang trọng. Diện tích mặt tiền 4m cũng đủ lớn để tạo ra một không gian mở với sân vườn thoáng đãng.
>> Có thể bạn quan tâm: Tổng hợp mẫu vách ngăn phòng khách đẹp, hiện đại, sang trọng

Mẫu nhà ống đẹp mặt tiền 4m có sân vườn nhỏ (Nguồn: Internet)

Mẫu thiết kế nhà ống 3 tầng đẹp mặt tiền 4m (Nguồn: Internet)

Nhà ống đẹp với mặt tiền 4m thiết kế độc đáo (Nguồn: Internet)

Mẫu nhà ống đẹp 4m với kiểu mái độc đáo (Nguồn: Internet)

Mẫu nhà ống đẹp mặt tiền 4m phong cách hiện đại (Nguồn: Internet)

Mẫu nhà ống hiện đại mặt tiền 4m với thiết kế độc đáo, ấn tượng (Nguồn: Internet)
Mẫu nhà ống mặt tiền 5m đẹp
Mẫu nhà ống đẹp mặt tiền 5m không chỉ đáp ứng đầy đủ các nhu cầu sử dụng mà còn đảm bảo tính thẩm mỹ. Với diện tích 5m, những ngôi nhà này mang đến vẻ đẹp tinh tế và phù hợp cho những gia đình có 2-3 thế hệ cùng sinh sống, tạo nên một không gian sống thoải mái và ấm cúng.

Mẫu nhà ống mặt tiền 5m tận dụng làm sân rộng rãi (Nguồn: Internet)

Mẫu nhà ống đẹp cho mặt tiền 5m có chỗ để xe ô tô (Nguồn: Internet)

Kiểu nhà ống mặt tiền 5m có cổng chào mời thoáng đãng (Nguồn: Internet)

Thiết kế nhà ống hiện đại có mặt tiền 5m tận dụng làm chỗ đậu xe rộng rãi (Nguồn: Internet)

Mẫu nhà ống hiện đại mặt tiền 5m với gam màu trắng tinh tế (Nguồn: Internet)

Mẫu nhà ống đẹp 2 tầng mặt tiền 5m với mái bằng hiện đại (Nguồn: Internet)

Mẫu nhà ống có chiều ngang 5m đẹp, hiện đại (Nguồn: Internet)

Mẫu nhà ống mặt tiền 5m kết hợp mái Thái đẹp mắt, ấn tượng (Nguồn: Internet)
Mẫu nhà ống mặt tiền 6m đẹp
Thiết kế nhà ống đẹp mặt tiền 6m mang đến sự linh hoạt trong việc lựa chọn phong cách kiến trúc, từ cổ điển, tân cổ điển đến hiện đại, tùy thuộc vào sở thích cá nhân của mỗi gia chủ. Tuy vậy, với diện tích này, bạn nên ưu tiên lựa chọn tạo không gian thông thoáng, rộng rãi và kết nối hài hòa giữa các phòng chức năng để tạo ra một môi trường sinh hoạt ấm cúng và tiện nghi.

Mẫu nhà ống đẹp mặt tiền 6m 2 tầng 1 tum (Nguồn: Internet)

Mẫu nhà ống đẹp mặt tiền 6m 2 tầng hình chữ L (Nguồn: Internet)

Mẫu nhà ống đẹp mặt tiền 6m kết hợp cửa gỗ sang trọng (Nguồn: Internet)
Mẫu nhà ống đẹp mặt tiền 7m
Mẫu nhà ống đẹp với mặt tiền rộng 7m tạo điều kiện thuận lợi cho sự sáng tạo kiến trúc theo phong cách của riêng bạn. Tuỳ vào nguồn kinh phí, bạn có thể lựa chọn xây dựng nhiều tầng hoặc ít tầng. Tuy nhiên, điểm nhấn của mẫu thiết kế nhà ống đẹp này nằm ở diện mạo, do đó bạn cần trang trí và bày trí cho ngôi nhà sao cho đẹp nhất.

Mẫu nhà ống đẹp mặt tiền 7m thiết kế dưới dạng các khối hộp độc đáo (Nguồn: Internet)

Mẫu nhà ống đẹp có mặt tiền 7m rộng rãi, tiện nghi (Nguồn: Internet)

Mẫu thiết kế nhà ống đẹp với 2 tầng và nội thất hiện đại (Nguồn: Internet)

Mẫu nhà ống hiện đại, sang trọng có 7m mặt tiền (Nguồn: Internet)
>> Để nhận được tư vấn và bảng giá chi tiết vật liệu tấm xi măng DURAflex 2X làm sàn - tường -trần - lót mái nhà ống, vui lòng bấm:
Mẫu nhà ống có 2 phòng ngủ hiện đại
Nếu như sở hữu diện tích đất có chiều ngang hẹp hơn nhiều so với chiều dài, gia chủ có thể cân nhắc xây dựng mẫu nhà ống 2 phòng ngủ theo gợi ý dưới đây. Cách bố trí này đảm bảo ngôi nhà sẽ có đầy đủ công năng và sự riêng tư cần thiết với những gia đình ít thành viên.
>> Xem thêm: Top 20 mẫu nhà lắp ghép chi phí 100 triệu đẹp nhất hiện nay

Bản thiết kế nhà ống đẹp, hiện đại, đầy đủ tiện nghi (Nguồn: Internet)

Mẫu nhà ống có 2 phòng ngủ phong cách hiện đại, thoáng mát (Nguồn: Internet)
Mẫu nhà ống có 3 phòng ngủ đẹp
Mẫu nhà ống 3 phòng ngủ dưới đây có thiết kế hình khối vô cùng độc đáo. Thay vì chọn cách xây dựng cao tầng để đảm bảo đầy đủ các khu vực chức năng cần thiết, gia chủ đã quyết định xây dựng chỉ 2 tầng và bổ sung một phần sân nhỏ bên cạnh để tận dụng ánh sáng tự nhiên.

Mẫu nhà ống hiện đại có 3 phòng ngủ, thiết kế phá cách (Nguồn: Internet)

Mẫu nhà ống 1 tầng có 3 phòng ngủ đẹp, tiện nghi (Nguồn: Internet)
Mẫu nhà ống có 4 phòng ngủ đẹp
Các mẫu nhà ống đẹp với 4 phòng ngủ thường được thiết kế từ 2 đến 3 tầng để phân chia không gian, đảm bảo sự riêng tư và tạo cảm giác thoải mái cho các thành viên trong gia đình khi sử dụng.
>> Top 12 mẫu nhà sắt tiền chế nhỏ đẹp, hiện đại, giá rẻ - Báo giá 2023

Mẫu nhà ống có 4 phòng ngủ đẹp, tiện nghi (Nguồn: Internet)

Mẫu nhà ống hiện đại 3 tầng 4 phòng ngủ với tấm xi măng làm tường Cemboard DURAflex 2X bề đẹp (Nguồn: Internet)
Bản vẽ thiết kế nhà ống đẹp, đầy đủ công năng
Dưới đây là bản vẽ chi tiết của một mẫu nhà ống đẹp, đầy đủ công năng:
- Tầng trệt: Gồm sảnh chính dẫn vào không gian phòng khách. Phòng sinh hoạt chung được bố trí sát bên phòng khách để tạo liên kết giữa hai không gian, thuận tiện cho việc giao tiếp và trò chuyện trong gia đình. Cầu thang được đặt ở giữa nhà. Bên cạnh cầu thang là phòng ngủ 1. Gần cuối nhà là không gian bếp nấu ăn và nhà vệ sinh.

Bản vẽ thiết kế mẫu nhà ống đẹp tầng 1 (Nguồn: Internet)
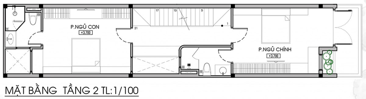
- Tầng 2: Gồm hai phòng ngủ chính và một phòng ngủ phụ. Phòng ngủ chính có thể được sử dụng bởi chủ nhà, trong khi phòng ngủ phụ có thể phục vụ cho các thành viên khác trong gia đình. Ngoài ra, tầng 2 cũng có không gian để làm việc hoặc phòng thờ tùy theo nhu cầu sử dụng.

Bản vẽ thiết kế mẫu nhà ống đẹp tầng 2 (Nguồn: Internet)
>> Để nhận được tư vấn và bảng giá chi tiết vật liệu tấm xi măng DURAflex 2X làm sàn - tường -trần - lót mái nhà ống, vui lòng bấm:
Cách tính chi phí xây dựng nhà ống đẹp, hiện đại
Xây dựng mẫu nhà ống có đắt không?
Xây nhà ống đang được ưa chuộng vì chủ nhà có thể tiết kiệm được chi phí do thiết kế đơn giản và xây dựng trong thời gian ngắn. Tuy nhiên, DURAflex vẫn muốn chia sẻ cho người đọc cách tính giá xây dựng nhà ống sao cho sang trọng và vừa túi tiền.
Chi phí xây dựng nhà ống được tính như thế nào?
Bước 1: Tính theo diện tích nhà ống quy đổi
Diện tích của mẫu nhà ống đơn giản sẽ bằng tổng các phần (1) (2) (3) (4). Trong đó:
(1) là phần móng:
Móng đơn = 40% x S (Diện tích sàn)
Móng cọc ép tải = 30% x S (diện tích sàn)
Móng cọc ép neo = 40% x S (diện tích sàn)
Móng băng = 50% x S (diện tích sàn)
(2) là phần thân:
Tầng trệt, lầu = 100% x S (diện tích phần xây dựng)
Tầng lửng = 50% x S (diện tích phần xây dựng)
(3) là phần mái nhà:
Mái bê tông = 50% x S (diện tích phần xây dựng)
Mái tôn = 20% x S (diện tích phần xây dựng)
Mái ngói = 70% x S (diện tích phần xây dựng)
Mái ngói đổ bê tông = 100% x S (diện tích phần xây dựng)
(4) là sân nhà:
Sân trước + sau= 30% - 50% x S (diện tích phần xây dựng)
Bước 2: Tính theo chi phí xây dựng nhà ống
Chi phí xây dựng = Diện tích xây dựng quy đổi x Giá xây dựng
Lưu ý: Giá xây dựng toàn bộ gần đây dao động từ 5,4 - 6,45 triệu/m2

Thi công nhà ống hiện đại giúp tiết kiệm chi phí cho gia chủ (Nguồn: Internet)
Lưu ý khi thi công mẫu nhà ống hiện đại
Để đảm bảo chất lượng và độ bền của mẫu nhà ống đẹp trong quá trình thi công, bạn cần lưu ý các vấn đề sau đây:
- Xem xét diện tích đất và lựa chọn mẫu nhà ống phù hợp, đảm bảo sự thông thoáng và tận dụng tối đa ánh sáng và gió tự nhiên, đặc biệt là với các mẫu nhà phố.
- Chú ý cách bố trí các khu vực chức năng trong nhà hợp lý, tạo cảm giác thoáng đãng và rộng rãi.
- Đối với các mẫu nhà ống thấp tầng sử dụng mái tôn hoặc mái bằng, hãy sử dụng Tấm trần thả DURADECOR để đảm bảo trần nhà có khả năng cách nhiệt và chống nóng hiệu quả.
- Chọn vật liệu xây dựng là Tấm DURAflex 2X 6mm-10mm chất lượng để công trình có độ bền cao, khả năng chịu ẩm, chống nóng, cách âm hiệu quả và an toàn sức khỏe cho người sử dụng.
- Thi công theo đúng quy trình và chọn đội ngũ thầu thợ có kinh nghiệm để đảm bảo chất lượng công trình.
Bí quyết lựa chọn nhà thầu xây dựng nhà ống
Tìm nhà thầu xây dựng sao cho phù hợp với túi tiền vẫn còn đang là những vấn đề được nhiều gia đình quan tâm. Chọn sai nhà thầu có thể làm tăng rủi ro xây dựng. Lựa chọn mẫu nhà thầu uy tín sẽ giúp mọi người tiết kiệm chi phí. Đồng thời, điều này sẽ giúp chủ nhà đảm bảo được chất lượng công trình. Dưới đây là những lưu ý khi chọn đơn vị nhà thầu mà bạn cần lưu ý:
- Hồ sơ minh bạch, rõ ràng sẽ giúp chủ nhà tham khảo được những mẫu nhà đẹp và thành quả chất lượng.
- Có cam kết với khách hàng và có chính sách hậu mãi hỗ trợ quyền lợi khách hàng sẽ giúp tiết kiệm một khoản chi phí xây dựng khổng lồ.
- Tìm các mối đại lý chuyên cung cấp vật liệu xây dựng cho công ty xây dựng đó để khi mua vật liệu sẽ được chiết khấu 1 phần. Điều này giúp chủ nhà giảm chi phí thu mua vật liệu.

Nên cân nhắc lựa chọn nhà thầu xây dựng nhà ống đẹp uy tín, có tay nghề cao (Nguồn: Internet)
Hy vọng rằng, với những gợi ý thiết kế nhà ống đẹp được đề cập ở trên, gia chủ sẽ có thêm nhiều ý tưởng cho ngôi nhà mơ ước của mình. DURAflex rất hân hạnh được đồng hành cùng bạn trong mọi giải pháp thi công để có công trình hoàn hảo với mức chi phí tối ưu nhất.
Mọi chi tiết về sản phẩm hay bất kỳ thắc mắc nào liên quan đến mẫu nhà ống đẹp, quý khách hàng vui lòng liên hệ trực tiếp với DURAflex qua Hotline: 1800-1218 để được tư vấn.





Đánh giá và nhận xét
Đánh giá trung bình
0/5
5
4
3
2
1
Chia sẻ và nhận xét về bài viết
Chia sẻ và nhận xét về bài viết
Bài viết chưa có đánh giá nào